Enter starting street address:

City, State or Zipcode:
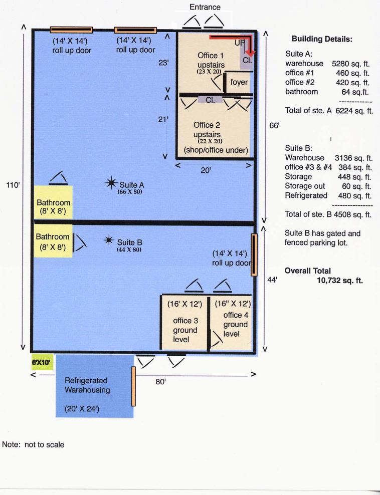
Building Floor Plan
375 Adrian Rd., Suites A and B
Millbrae, Ca. 94030
650 867-3881
See Photos